均价23000-25000元/平米
-
钱塘江北岸、复兴大桥东侧、之江中路与中河高架交汇处
-
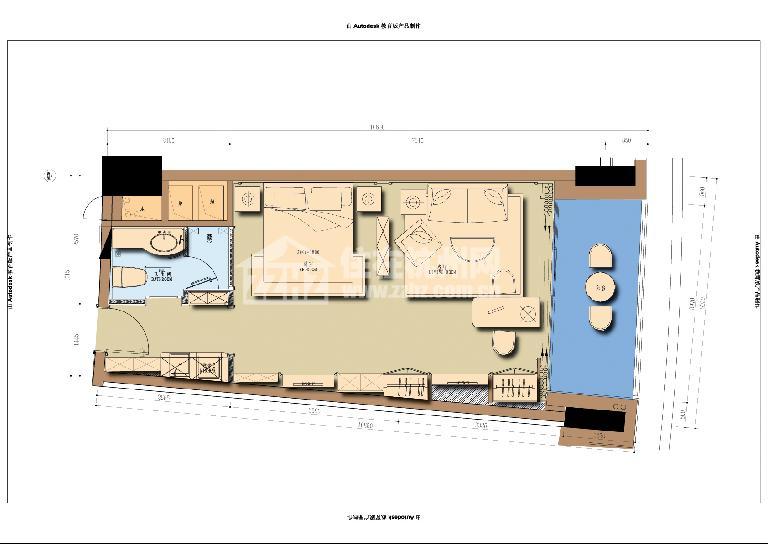
酒店式公寓50平米左右
-
公寓 写字楼 酒店式公寓
-
精装修
-
2013-03-10
-
2013-12
-
50年
楼盘动态
- 海运国际已售罄 2015-08-24
- 海运国际精装酒店式公寓尾房现房在售 2015-07-23
- 海运国际精装酒店式公寓尾房现房在售 2015-06-24
- 海运国际精装酒店式公寓尾房现房在售 2015-05-16
- 海运国际精装酒店式公寓尾房现房在售 2015-04-08
- 海运国际精装酒店式公寓尾房现房在售 2015-03-24
- 海运国际精装酒店式公寓尾房现房在售 2015-01-21
- 海运国际精装酒店式公寓尾房现房在售 2014-12-22
- 海运国际一线江景写字楼,一层两层地买 2013-05-15
- 海运国际二期高层房源“上宸” 5月加推 2013-05-06
- 海运国际3月商业地产销冠,60方精装公馆热销爆红市中心 2013-04-18
-
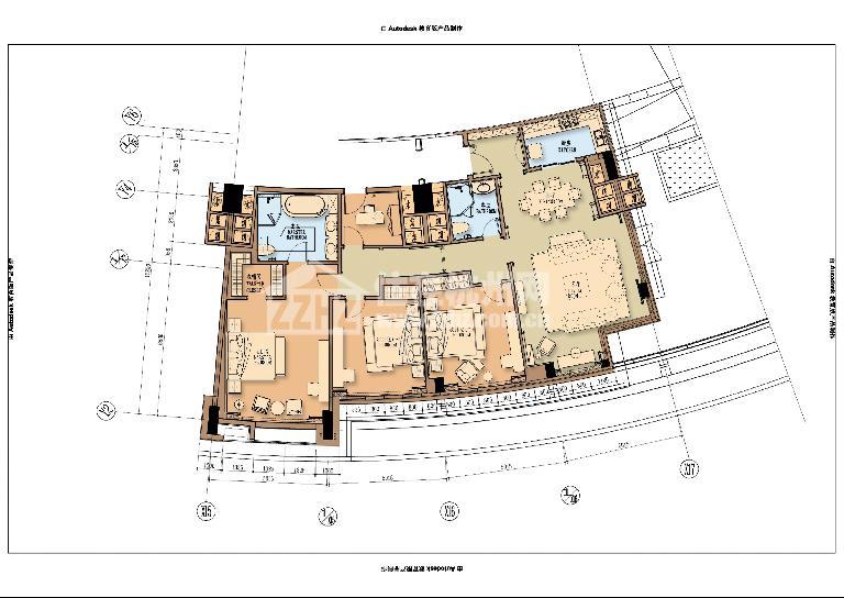
G5户型3室2厅2卫 建筑面积261平米
-
F2户型2室2厅2卫 建筑面积174-177平米
-
F1户型2室2厅2卫 建筑面积172-177平米
-
E1户型2室2厅2卫 建筑面积166-173平米
-
D2户型3室2厅2卫 建筑面积237平米
-
D1户型3室2厅2卫 建筑面积236-237平米
-
C2户型1室1厅1卫 建筑面积76-86平米
-
C1户型1室1厅1卫 建筑面积74-84平米
-
B户型1室1厅1卫 建筑面积65-69平米
-
A2户型1室1厅1卫 建筑面积65-73平米
-
A1户型1室1厅1卫 建筑面积63-71平米
-
户型A1室
-
户型C1室
-
户型B1室


